Schalthebel Atlas 1200
Schalthebel Atlas 1200
Hat hier jemand Bilder und Maße vom Schalthebel bzw Rohr für die Gelände/Straßengang Schaltung
Re: Schalthebel Atlas 1200
Hi,
ich mache ne Skizze und ein Foto, mache morgen vermutlich eh was am Bagger
Gruß Theodor
ich mache ne Skizze und ein Foto, mache morgen vermutlich eh was am Bagger
Gruß Theodor
Re: Schalthebel Atlas 1200
Hi,
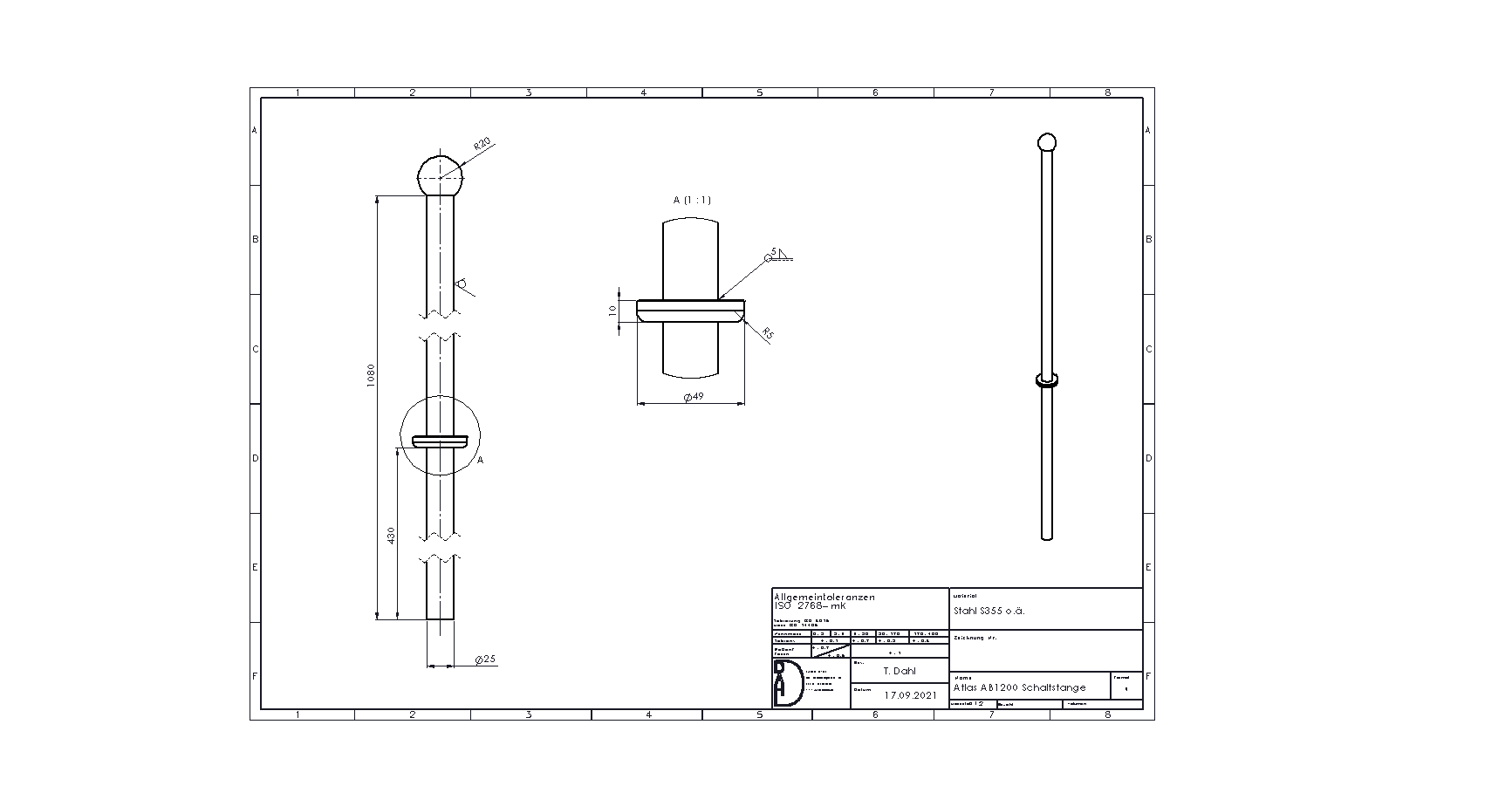
anbei eine Zeichnung vom Schaltstab, ist aus Vollmaterial, kein Rohr. Gruß Theodor
anbei eine Zeichnung vom Schaltstab, ist aus Vollmaterial, kein Rohr. Gruß Theodor
- Dateianhänge
-
Schaltstab.PDF
- (38.19 KiB) 486-mal heruntergeladen
Re: Schalthebel Atlas 1200
Bei mir?
ich hab alles mit mipa PU Lack lackiert.
Diesen Hebel zugegebener Maßen nicht besonders schön, der ist nur gepinselt.
ich hab alles mit mipa PU Lack lackiert.
Diesen Hebel zugegebener Maßen nicht besonders schön, der ist nur gepinselt.
Re: Schalthebel Atlas 1200
Hi,
zum pinseln/rollen und spritzen nehme ich Mipa PU 250-50 und für Strukturierte Flächen (lässt sich nicht pinseln) Mipa PU 300-70.
Oder auf den Maikäfer bezogen Anthrazit ist PU 250-50 und Orangen ist Mipa PU 300-70.
Bestelle ich normalerweise bei lackundfarbe24.de oder wenn es schnell gehen muss für einen wahnsinns Preis beim örtlichen Lack Händler
Gruß Theodor
zum pinseln/rollen und spritzen nehme ich Mipa PU 250-50 und für Strukturierte Flächen (lässt sich nicht pinseln) Mipa PU 300-70.
Oder auf den Maikäfer bezogen Anthrazit ist PU 250-50 und Orangen ist Mipa PU 300-70.
Bestelle ich normalerweise bei lackundfarbe24.de oder wenn es schnell gehen muss für einen wahnsinns Preis beim örtlichen Lack Händler

Gruß Theodor