Fusspedal für Schwenkbremse
-
Stutztaler
- Beiträge: 43
- Registriert: Mi 7. Aug 2013, 12:34
Fusspedal für Schwenkbremse
Guten Morgen,
Wie ist die Funktion und der Aufbau des Fusspedales für die Schwenkbremse beim 1102D?
Wer kann mir helfen?
Beste Grüße
Hans
Wie ist die Funktion und der Aufbau des Fusspedales für die Schwenkbremse beim 1102D?
Wer kann mir helfen?
Beste Grüße
Hans
- Christian375
- Beiträge: 33
- Registriert: Do 23. Dez 2021, 13:30
Re: Fusspedal für Schwenkbremse
Servus, kann dir erzählen wie es bei meinen 1202d funktioniert.
Ich meine aber da gibt es einen Unterschied zum 1102d, dass könnte aber bitte wer bestätigen oder verneinen
Funktionsweise beim 1202d:
Mit Tritt auf das Pedal entlüftest du die Leitung zwischen Pedal und Schwenkbremse und die Feder im Zylinder der Bremse blockiert die Trommel - Oberwagen fest.
Bei gelöstem Pedal strömt die Luft zum Zylinder, und löst gegen die Federkraft die Bremse wieder.
Ich meine aber da gibt es einen Unterschied zum 1102d, dass könnte aber bitte wer bestätigen oder verneinen
Funktionsweise beim 1202d:
Mit Tritt auf das Pedal entlüftest du die Leitung zwischen Pedal und Schwenkbremse und die Feder im Zylinder der Bremse blockiert die Trommel - Oberwagen fest.
Bei gelöstem Pedal strömt die Luft zum Zylinder, und löst gegen die Federkraft die Bremse wieder.
Schlechte Ideen, brilliante Ausführung!
Atlas 1202D
UAZ 469
Belarus MTS 50
2007 Ford Ranger ExtraCab
Atlas 1202D
UAZ 469
Belarus MTS 50
2007 Ford Ranger ExtraCab
-
Stutztaler
- Beiträge: 43
- Registriert: Mi 7. Aug 2013, 12:34
Re: Fusspedal für Schwenkbremse
Hallo Christian,
Danke für die Info.
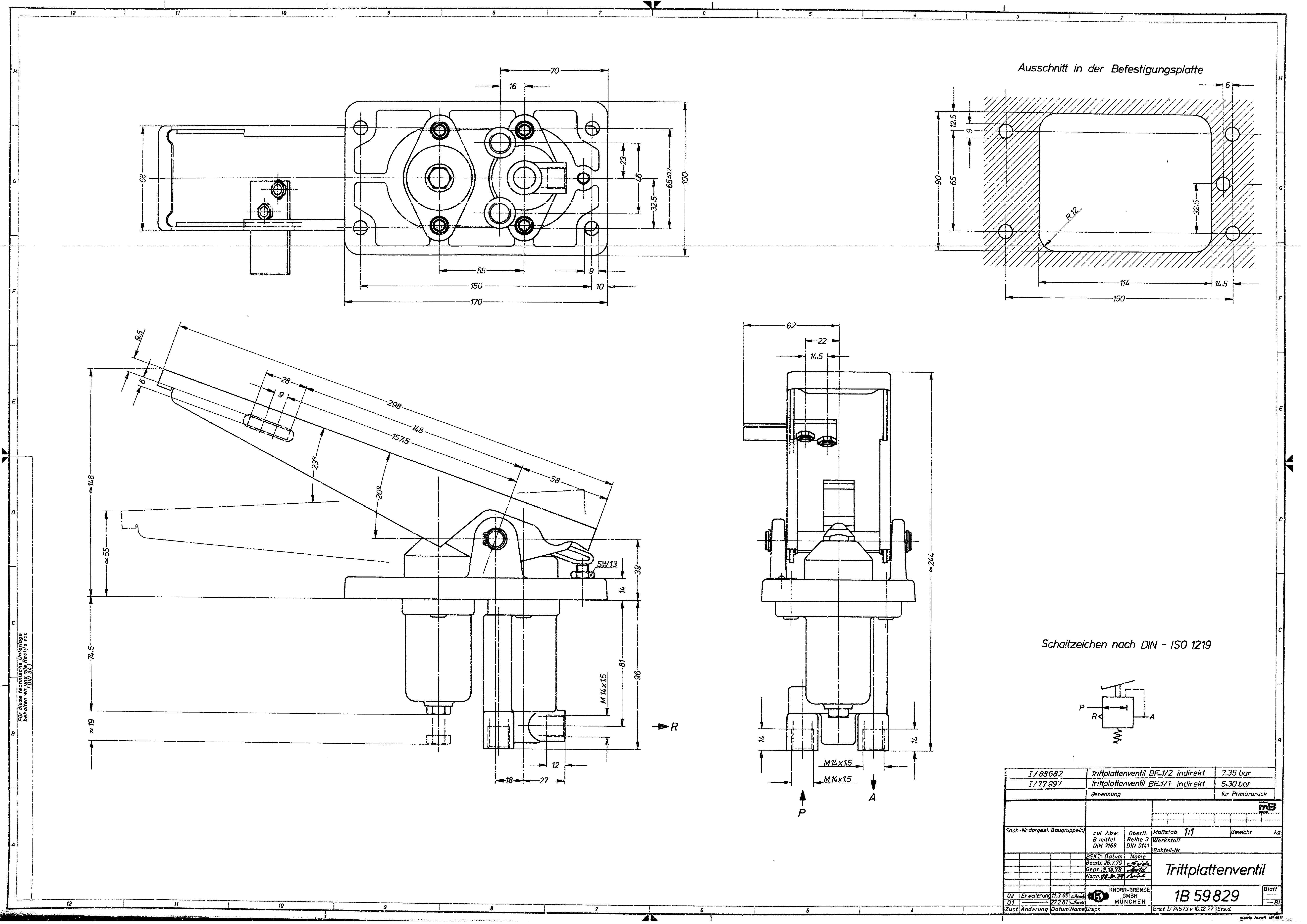
Hätte jemand eine Explosionszeichnung vom Trittplattenbremsventil für die Schwenkbremse beim 1102D?
Gruß
Hans
Danke für die Info.
Hätte jemand eine Explosionszeichnung vom Trittplattenbremsventil für die Schwenkbremse beim 1102D?
Gruß
Hans
Re: Fusspedal für Schwenkbremse
Das müßte das gleiche Pedal, wie bei Dir sein. Mehr hab ich leider nicht.
Gruß
Gruß
-
Stutztaler
- Beiträge: 43
- Registriert: Mi 7. Aug 2013, 12:34
Re: Fusspedal für Schwenkbremse
Vielen Dank für die Zeichnung.
Ich benötige das Innenleben, da ich nicht sicher bin ob es richtig zusammen gebaut ist. Beim Öffnen ist das Innenleben durch den Federdruck herausgesprungen und ich habe schon alle möglichen Zusammenbau Optionen probiert ohne das es wie vorher funktioniert. Das ursprüngliche Problem war dass das Trittplattenbremsventil für die Schwenkbremse kontinuierlich leicht entlüftet hat und dadurch der Kompressor immer gelaufen ist. Daher habe ich es geöffnet da ich dachte es wäre ein Problem der Dichtungen. Aktuell habe ich das Problem, dass die Schwenkbremse erst öffnet wenn das Pedal komplett nach oben gezogen wird. Wirklich auf den letzten Drücker. Wenn es nach unten getreten wird schließt die Schwenkbremse aber es entlüftet kontinuierlich was nicht sein sollte. Vielleicht falsch Zusammen gebaut?
Bestimmt 20 Mal zerlegt ein und ausgebaut.
Ich bin mit meinem Latein am Ende...
Ich benötige das Innenleben, da ich nicht sicher bin ob es richtig zusammen gebaut ist. Beim Öffnen ist das Innenleben durch den Federdruck herausgesprungen und ich habe schon alle möglichen Zusammenbau Optionen probiert ohne das es wie vorher funktioniert. Das ursprüngliche Problem war dass das Trittplattenbremsventil für die Schwenkbremse kontinuierlich leicht entlüftet hat und dadurch der Kompressor immer gelaufen ist. Daher habe ich es geöffnet da ich dachte es wäre ein Problem der Dichtungen. Aktuell habe ich das Problem, dass die Schwenkbremse erst öffnet wenn das Pedal komplett nach oben gezogen wird. Wirklich auf den letzten Drücker. Wenn es nach unten getreten wird schließt die Schwenkbremse aber es entlüftet kontinuierlich was nicht sein sollte. Vielleicht falsch Zusammen gebaut?
Bestimmt 20 Mal zerlegt ein und ausgebaut.
Ich bin mit meinem Latein am Ende...
Re: Fusspedal für Schwenkbremse
Hallo Hans,
vielleicht hilft das. Ist zwar vom 1404, aber ähnlich aufgebaut. Gruß Wolfgang
vielleicht hilft das. Ist zwar vom 1404, aber ähnlich aufgebaut. Gruß Wolfgang
- Christian375
- Beiträge: 33
- Registriert: Do 23. Dez 2021, 13:30
Re: Fusspedal für Schwenkbremse
Ist leider nicht die beste Auflösung, vielleicht hilft es.
Schlechte Ideen, brilliante Ausführung!
Atlas 1202D
UAZ 469
Belarus MTS 50
2007 Ford Ranger ExtraCab
Atlas 1202D
UAZ 469
Belarus MTS 50
2007 Ford Ranger ExtraCab